
Linux IOS Prime
By Engineers Horizon
JPHX+8FW IOS, Jeevan Nagar, Dattwadi, Tathawade, pune, maharashtra
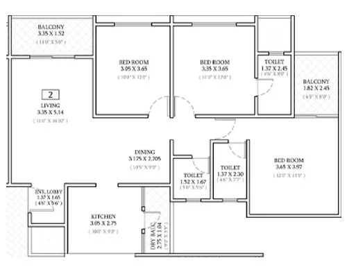
Carpet area: 727 - 757 sq.ft.

By Engineers Horizon
JPHX+8FW IOS, Jeevan Nagar, Dattwadi, Tathawade, pune, maharashtra
Carpet area: 727 - 757 sq.ft.

Engineers Horizon
12+
Years of experience7+
Total projects